Продам торговое помещение в Москве, д 8 к 3
На карте
Об объекте
ID: o94900
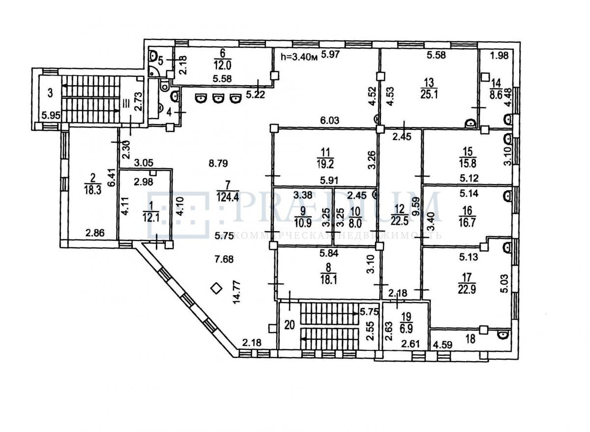
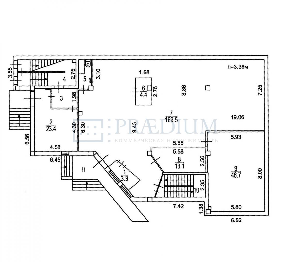
Уважаемый Покупатель, предлагаем Вам приобрести 1023.8 м² в собственность на выгодных условиях.
Приточно-вытяжная вентиляция. Центральное кондиционирование. Интернет, телефония. Видеонаблюдение. Система контроля доступа.
ЮАО Москвы. В 7 минутах от м. Шипиловская
Быстро реагируем на обращения, организуем встречу на объекте в удобное для Вас время, направим план помещения и ответим на все возникшие вопросы!
Звоните сейчас и получите лучшие условия на рынке!
24.04.2025 | 1
№126507
Цена за м2 203 552 ₽
Местоположение
ГородМосква
МетроШипиловская
Параметры объекта
Этажность2
Площадь общая1024
Основное
2025-04-24 12:23:28
Похожие объявления
Отдел коммерческой недвижимости
Скажите, что нашли эти контакты на сайте поиска
недвижимости КваддРу
недвижимости КваддРу
