Главная Коммерческая Аренда Офисы Объект №125409
Сдается офис в Москве, д 8
На карте
Инфраструктура Панорама
Инфраструктура
Школы
Детские сады
Поликлиники
Продуктовые магазины
Кафе
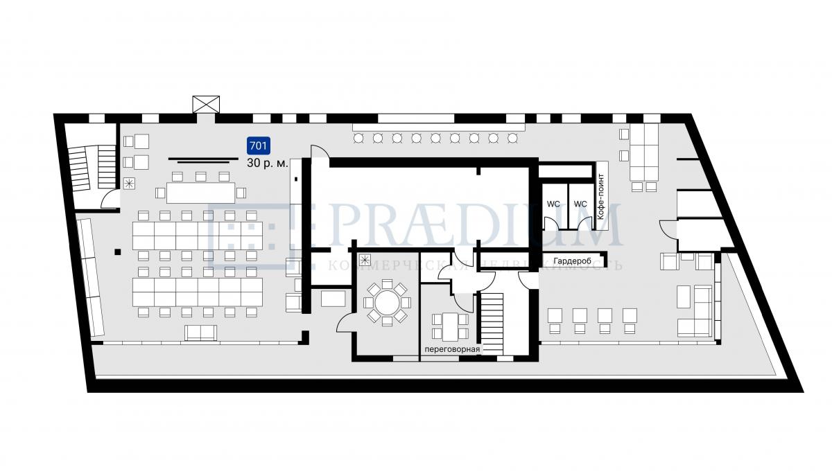
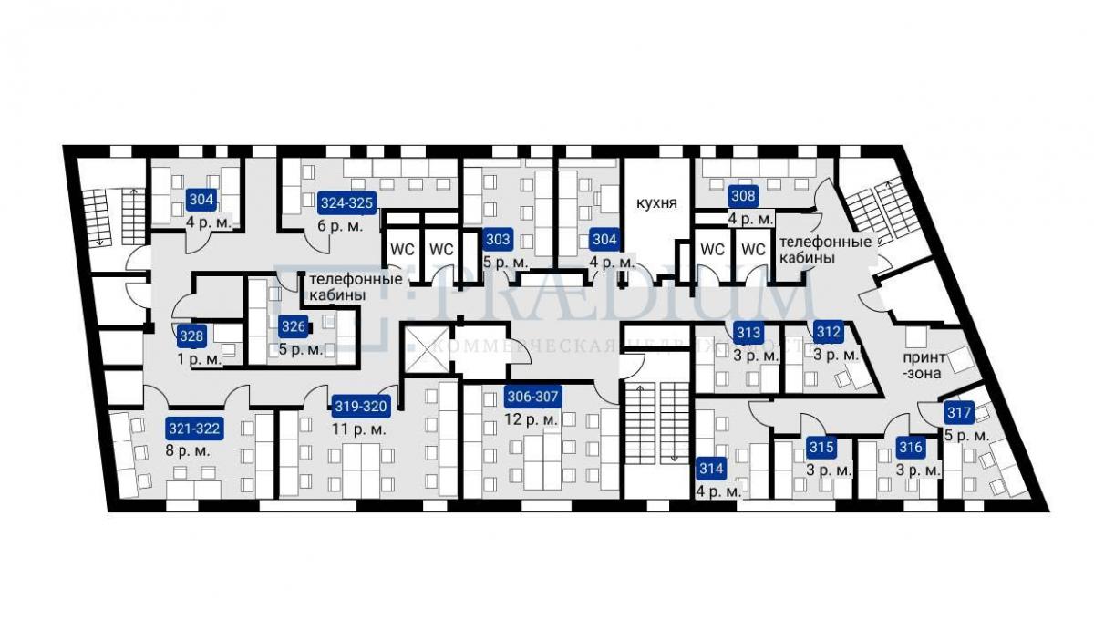
Об объекте
ID: L12723
Бизнес-класс в самом сердце Москвы.
Расположение: исторический центр, отличная транспортная доступность.
Пространство: офисы на 1-7 этажах, вместительность до 372 сотрудников.
Комфорт: высокие потолки, офисная мебель, стиль лофт.
Инфраструктура: кухня, переговорные, принт-зона, телефонные кабины, санузлы.
Система безопасности: круглосуточная охрана, видеоконтроль, контроль доступа, противопожарная защита.
Удобства: наличие современных лифтов, центральное кондиционирование, эффективная вентиляция.
Оборудована наземная парковка.
Коммерческие условия: оформление с учетом НДС.
Сотрудничаем с коллегами.
05.11.2014 | 1
№125409
в месяц
Ставка аренды за м2 10 479 ₽
Местоположение
ГородМосква
МетроКурская
Параметры объекта
Этажность7
Площадь общая2130
Основное
2014-11-05 12:12:33
Отдел коммерческой недвижимости
Скажите, что нашли эти контакты на сайте поиска
недвижимости КваддРу
недвижимости КваддРу
