Главная Коммерческая Аренда Офисы Объект №124807
Сдается офис в Москве, д 8
На карте
Инфраструктура Панорама
Инфраструктура
Школы
Детские сады
Поликлиники
Продуктовые магазины
Кафе
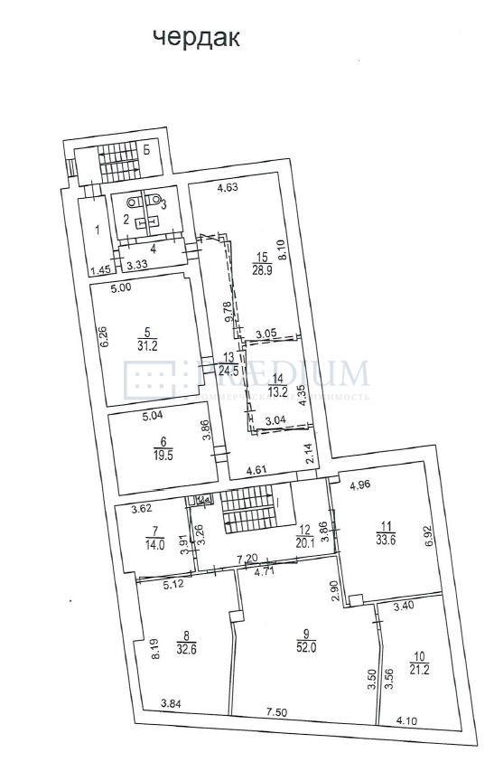
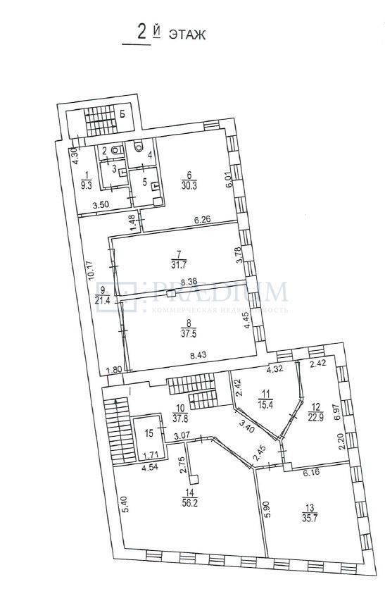
Об объекте
ID: L11775
Аренда офисного здания 1223 м2 в районе станции метро Комсомольская, Сухаревская и Площадь трёх вокзалов.
o 4 этажа, мансардный этаж, здание целиком
o Класс В
o Особняк, отдельно стоящее здание, ОСЗ
o Качественная офисная отделка
o Кабинетная функциональная планировка
o Переговорные, кабинеты с душевыми и с/у, опен спейс, переговорные, кухня и серверная
o Три отдельных входа
o Высота потолков 2,7 м – 3,2 м
o Долгосрочный договор аренды
o Ближайшие станции метро Комсомольская, Сухаревская и Площадь трёх вокзалов, 8 - 10 минут пешком
o В шаговой доступности вся необходимая и развитая инфраструктура
o Все коммуникации центральные
o Круглосуточная охрана и видеонаблюдение
o Наземная парковка на 2 м/м
o Вакантно с 23 11 2025
Здание расположено в районе Красносельский. Общая площадь здания 1222,8 м2. Этажность 4. Год постройки 1917.
Заинтересованы в аренде или покупке коммерческой недвижимости, записывайтесь на индивидуальный просмотр. Звоните!
04.02.2010 | 1
№124807
в месяц
Ставка аренды за м2 4 333 ₽
Местоположение
ГородМосква
МетроКрасные ворота
Параметры объекта
Этажность4
Площадь общая1223
Основное
2010-02-04 08:55:26
Отдел коммерческой недвижимости
Скажите, что нашли эти контакты на сайте поиска
недвижимости КваддРу
недвижимости КваддРу
