Главная Коммерческая Аренда Офисы Объект №124810
Сдается офис в Москве, д 8
На карте
Инфраструктура Панорама
Инфраструктура
Школы
Детские сады
Поликлиники
Продуктовые магазины
Кафе
Об объекте
ID: L12030
Сдам особняк на Чистых Прудах, оперативный ответ на ваш звонок и показ!
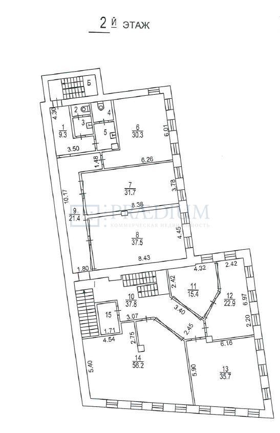
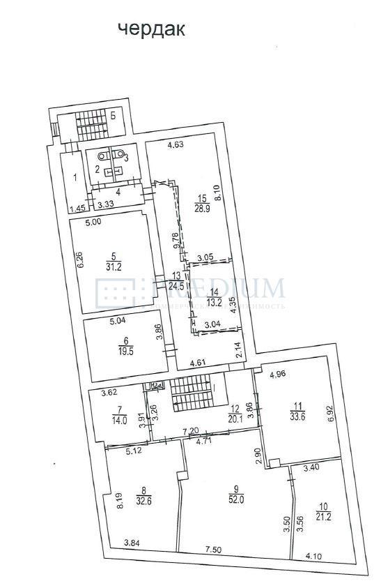
Особняк под офис, шоу рум, мед центр 1123 кв.м.
Готово к въезду, с отделкой, возможно с мебелью.
Эффективная планировка - кабинеты руководства и отделов
Отдельный вход в улицы
Парковка на территории
Агентам хорошая КОМИССИЯ!
Отвечу на все ваши вопросы и оперативно организую просмотр!
04.02.2010 | 2
№124810
в месяц
Ставка аренды за м2 4 333 ₽
Местоположение
ГородМосква
МетроКрасные ворота
Параметры объекта
Этажность4
Площадь общая1223
Основное
2010-02-04 08:55:26
Отдел коммерческой недвижимости
Скажите, что нашли эти контакты на сайте поиска
недвижимости КваддРу
недвижимости КваддРу
