Главная Коммерческая Аренда Офисы Объект №125419
Сдается офис в Москве, д 21
На карте
Инфраструктура Панорама
Инфраструктура
Школы
Детские сады
Поликлиники
Продуктовые магазины
Кафе
Об объекте
ID: L12627
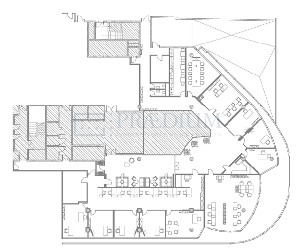
Аренда премиального дизайнерского офиса 2604 м2 в районе станции метро Белорусская и Маяковская.
o 6 этаж, целиком, и 9 этаж
o Класс А+
o Качественная офисная отделка
o Смешанная функциональная планировка
o Кабинеты, переговорные, кухня, серверные, ВИП-зоны
o Прозрачные офисные перегородки, двойное остекление
o Офис частично укомплектован встроенной мебелью
o Панорамные окна
o Прекрасные виды на Москву
o Историческая и узнаваемая локация
o Бизнес центр Четыре Ветра
o Ближайшие станции метро Белорусская и Маяковская, 3- 4 минуты пешком
o В шаговой доступности вся необходимая и развитая инфраструктура
o Современные инженерные системы
o Все коммуникации центральные
o Круглосуточная охрана и видеонаблюдение
o Подземная парковка
Здание расположено в Тверском районе. Общая площадь здания 27805,3 м2. Этажность 10. Год постройки 2009.
Заинтересованы в аренде или покупке коммерческой недвижимости, записывайтесь на индивидуальный просмотр. Звоните!
22.03.2010 | 1
№125419
в месяц
Ставка аренды за м2 7 100 ₽
Местоположение
ГородМосква
МетроБелорусская
Параметры объекта
Этаж9
Этажность10
Площадь общая2604
Основное
2010-03-22 12:25:07
Отдел коммерческой недвижимости
Скажите, что нашли эти контакты на сайте поиска
недвижимости КваддРу
недвижимости КваддРу
