Сдается офис в Москве, д 8
На карте
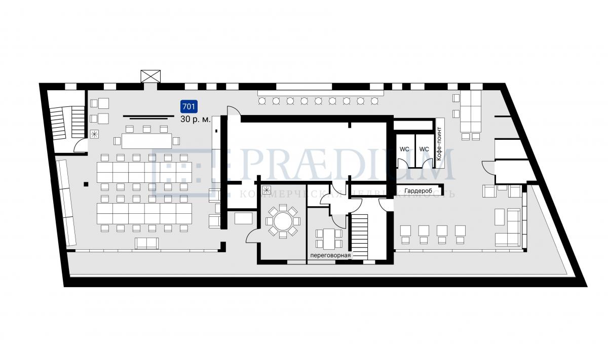
Об объекте
ID: L12316
Представляем вашему вниманию современный сервисный офис на 80 рабочих мест в Москве.
Площадью 140 кв.метров.
Ультрасовременная дизайнерская отделка и первоклассная мебель для каждого сотрудника.
Гибкое пространство с мягкими зонами отдыха и удобными переговорными комнатами.
Еженедельная чистка и ежедневная уборка помещений, создание условий максимальной чистоты и порядка.
Удобная комплектация и дополнительная поддержка по любым административным хозяйственным вопросам.
Помимо этого, офис предоставляет широкий спектр услуг, входящих в арендную плату:
Забронируйте любую переговорную комнату заранее.
Получите профессиональный сервис печати и технического сопровождения IT-инфраструктуры.
Наслаждайтесь расслабляющей обстановкой в зонах отдыха с чаем, кофе и питьевой водой.
Используйте качественный скоростной интернет для оперативной связи и работы онлайн.
Бизнес-центр относится к категории B+, предлагая высокие стандарты комфорта и надежности:
Готовое пространство с готовой отделкой и полным оборудованием.
Современная система вентиляции и кондиционирования для благоприятного климата.
Наш бизнес-центр находится в престижном Центральном административном округе Москвы по адресу: улица Земляной Вал, 8.
05.11.2014 | 1
№125428
в месяц
Ставка аренды за м2 11 105 ₽
Местоположение
ГородМосква
МетроКурская
Параметры объекта
Этаж7
Этажность7
Площадь общая140
Основное
2014-11-05 12:12:33
Похожие объявления
Отдел коммерческой недвижимости
Скажите, что нашли эти контакты на сайте поиска
недвижимости КваддРу
недвижимости КваддРу
