Главная Коммерческая Аренда Офисы Объект №127176
Сдается офис в Москве, д 31 стр А
На карте
Инфраструктура Панорама
Инфраструктура
Школы
Детские сады
Поликлиники
Продуктовые магазины
Кафе
Об объекте
ID: o97822
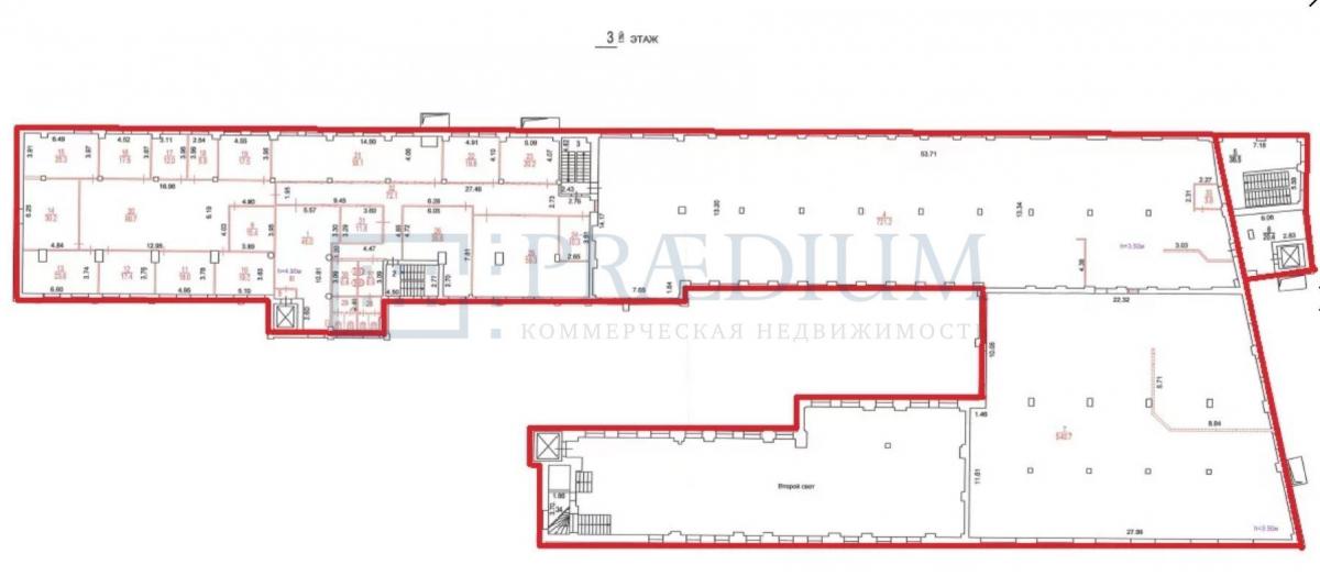
Уважаемый Арендатор, предлагаем Вам арендовать в БЦ "Шаболовка-31" офис 2319.1 м² на 3 этаже на выгодных условиях.
Планировка - смешанная. Интернет, телефония. Охрана. Видеонаблюдение. Система контроля доступа. Наземная парковка.
ЮАО Москвы. В 5 минутах от м. Шаболовская
Быстро реагируем на обращения, организуем встречу на объекте в удобное для Вас время, направим план помещения и ответим на все возникшие вопросы!
Звоните сейчас и получите лучшие условия на рынке!
15.05.2023 | 1
№127176
в месяц
Ставка аренды за м2 2 383 ₽
Местоположение
ГородМосква
МетроШаболовская
Параметры объекта
Этаж3
Этажность6
Площадь общая2319
Основное
2023-05-15 12:44:08
Отдел коммерческой недвижимости
Скажите, что нашли эти контакты на сайте поиска
недвижимости КваддРу
недвижимости КваддРу
