Продам офис в Москве, д 31
На карте
Об объекте
ID: L4593
Уважаемый Покупатель, предлагаем Вам приобрести в собственность бизнес-центр "Космонавта Волкова, 31" общей площадью 10113 м2.
Кабинетная планировка.
Четыре наземных этажа и подвала.
Подвал : 543.7 (высота потолков 230)
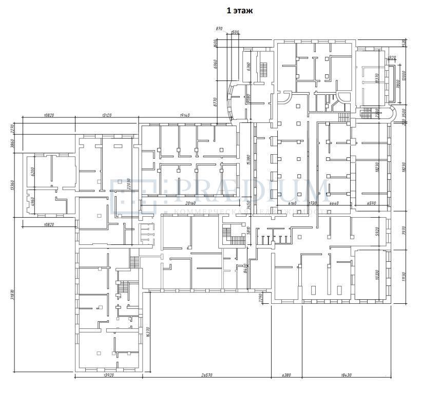
1 этаж : 2 610.8 (высота потолков 407)
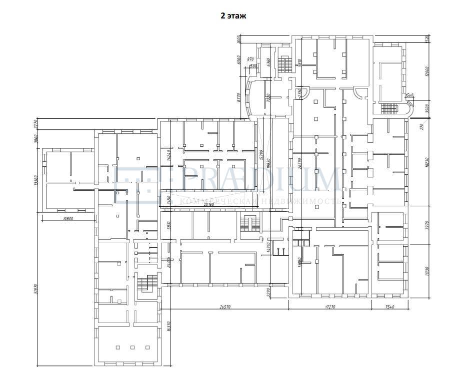
2 этаж : 2 599.3 (высота потолков 444)
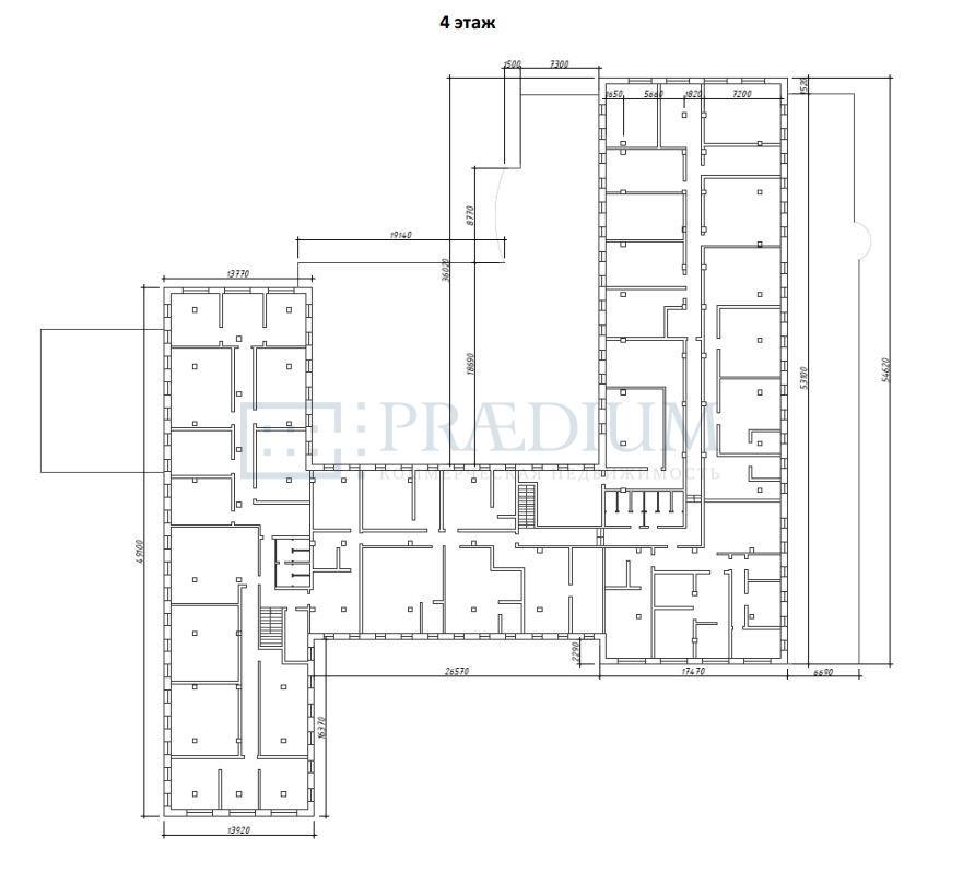
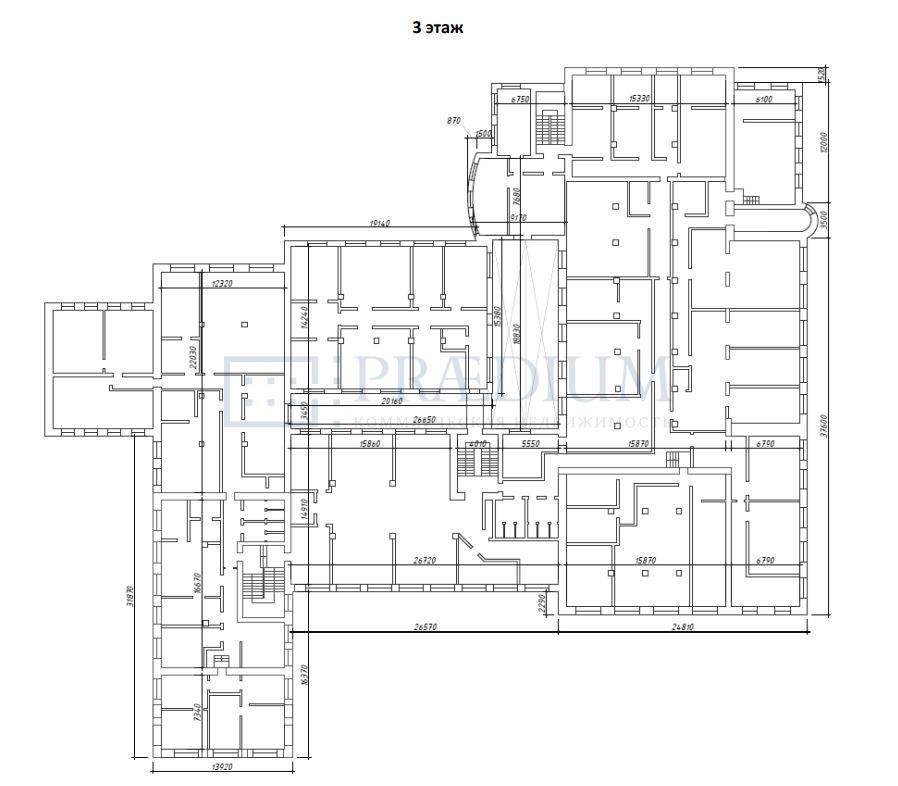
3 этаж : 2 548.6 (высота потолков 393)
Мансарда : 1 811.2 (высота потолков 425)
Высота потолков от 3 до 4,5 м.
Имеется охраняемая парковка на 100 машино-мест, круглосуточное видеонаблюдение.
В 2008г. была произведена реконструкция с заменой всех инженерных систем.
Быстро реагируем на обращения, организуем встречу на объекте в удобное для Вас время, направим план, и ответим на все возникшие вопросы!
Звоните, уточняйте и купите!
12.08.2010 | 1
№125501
Цена за м2 177 972 ₽
Местоположение
ГородМосква
МетроСокол
Параметры объекта
Этажность4
Площадь общая10114
Основное
2010-08-12 08:01:57
Похожие объявления
Отдел коммерческой недвижимости
Скажите, что нашли эти контакты на сайте поиска
недвижимости КваддРу
недвижимости КваддРу
