Продам офис в Москве, д 31
На карте
Об объекте
ID: L12315
Уважаемый Покупатель, предлагаем Вам приобрести в собственность 5 уровневое офисное здание бизнес-центра "Космонавта Волкова, 31", общей площадью 10 113 м2 в собственность на выгодных условиях. Звоните сейчас и поедем смотреть!
Продажа 100% долей компании.
Договор аренды ЗУ до 2065 года под административно-деловые цели.
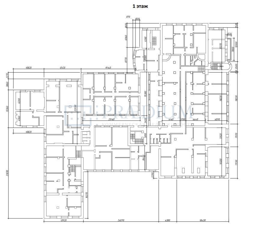
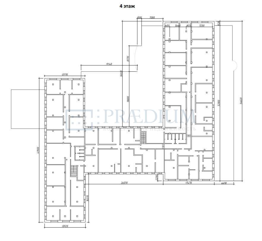
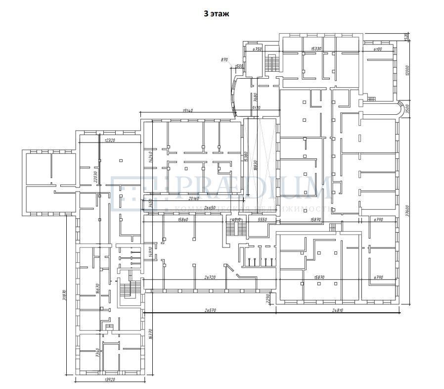
Кабинетная планировка. Подвал : 543.7 (высота потолков 230)
1 этаж : 2 610.8 (высота потолков 407)
2 этаж : 2 599.3 (высота потолков 444)
3 этаж : 2 548.6 (высота потолков 393)
Мансарда : 1 811.2 (высота потолков 425)
Быстро реагируем на обращения, организуем встречу на объекте в удобное для Вас время, направим план и ответим на все возникшие вопросы.
Сотрудничаем с агентствами/брокерами/консультантами/риелторами.
Звоните, уточняйте индивидуальные условия и приобретайте!
12.08.2010 | 1
№125503
Цена за м2 177 972 ₽
Местоположение
ГородМосква
МетроСокол
Параметры объекта
Этажность4
Площадь общая10114
Основное
2010-08-12 08:01:57
Похожие объявления
Отдел коммерческой недвижимости
Скажите, что нашли эти контакты на сайте поиска
недвижимости КваддРу
недвижимости КваддРу
