Продам офис в Москве, д 31
На карте
Об объекте
ID: L10568
Уважаемому покупателю представляется редкий шанс приобрести бизнес-центр Космонавта Волкова, 31.
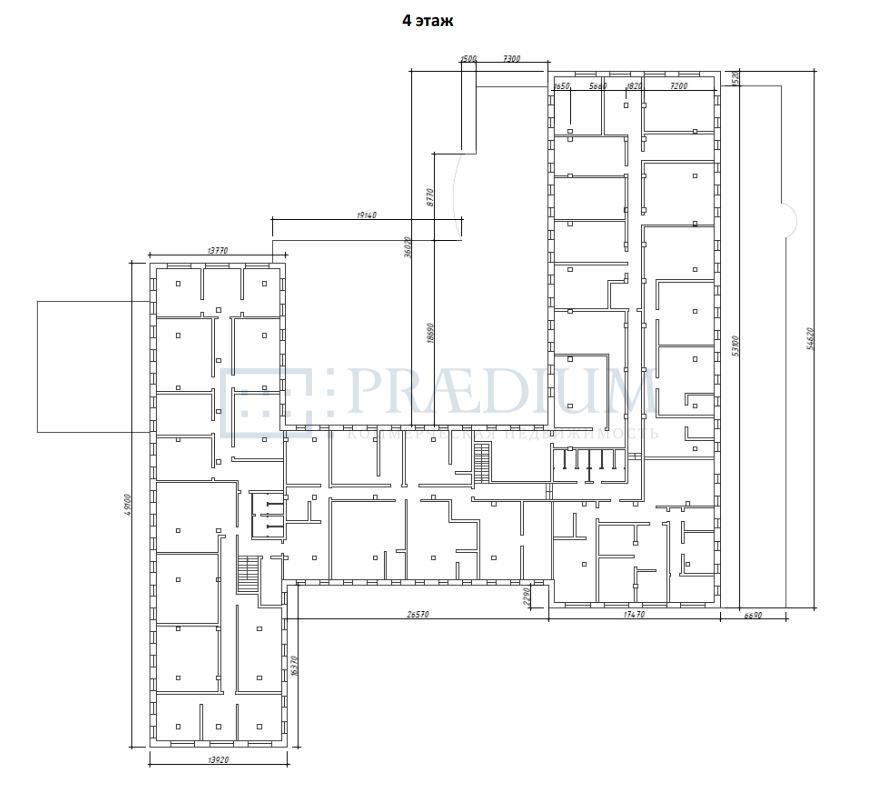
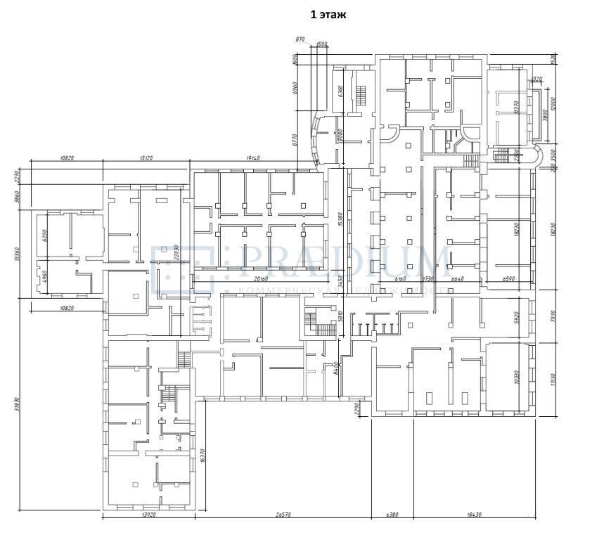
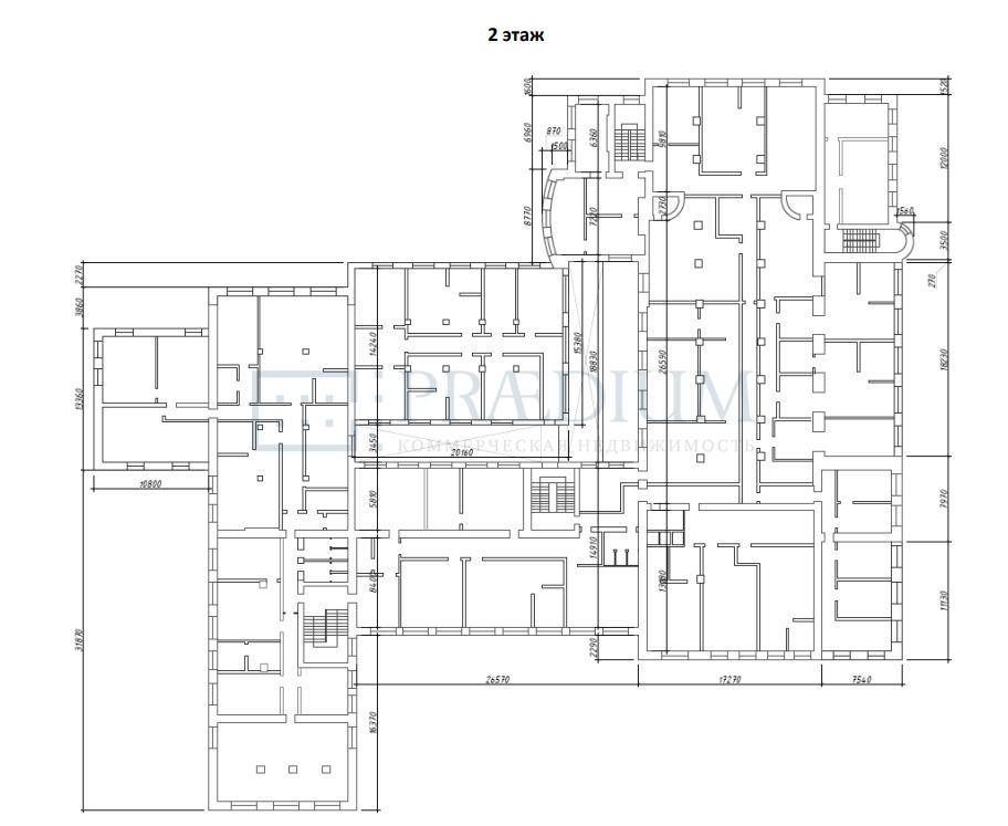
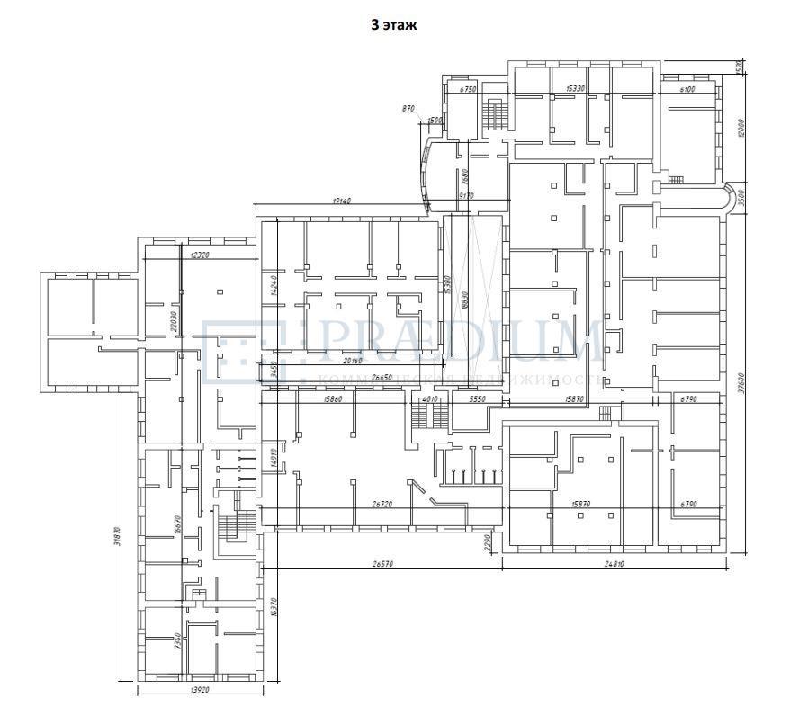
Общая площадь комплекса 10113 м2, разделённых на четыре уровня с отличной классической кабинетной планировкой.
Вы можете индивидуально настроить пространство под свои требования, высоты потолков — от 3 м до 4,5 м.
Вот точные данные по этажам: Подвал: 543,7 м2 (потолки 2,3 м), предназначен для размещения служебных и складских помещений. 1-й этаж: 2610,8 м2 (потолок 4,07 м), используется для больших конференц-залов и официальных приёмных. 2-й этаж: 2599,3 м2 (потолок 4,44 м), отлично подойдёт для административных и финансовых структур. 3-й этаж: 2548,6 м2 (потолок 3,93 м), пригоден для функциональных рабочих зон и мастерских. Мансарда: 1811,2 м2 (потолок 4,25 м), создаст особую творческую атмосферу для дизайнерских бюро и арт-студий.
Среди преимуществ также выделяется наличие просторной охраняемой автостоянки на сто мест и современная система видеонаблюдения, работающая круглосуточно.
Всё оборудование обновлено ещё в 2008 году, что гарантирует длительный срок службы и беспроблемную эксплуатацию.
Для уточнения параметров аренды или продажи, и записи на индивидуальный просмотр, звоните!
12.08.2010 | 1
№125504
Цена за м2 177 972 ₽
Местоположение
ГородМосква
МетроСокол
Параметры объекта
Этажность4
Площадь общая10114
Основное
2010-08-12 08:01:57
Похожие объявления
Отдел коммерческой недвижимости
Скажите, что нашли эти контакты на сайте поиска
недвижимости КваддРу
недвижимости КваддРу
