Продам офис в Москве, д 18А
На карте
Об объекте
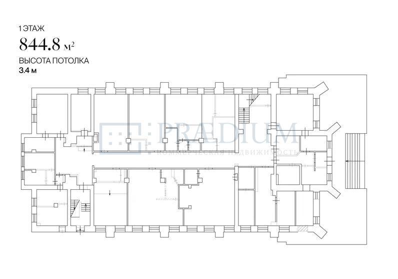
Продается от собственника административное здание общей площадью 3,299кв.м. расположенное в 7 минутах от м.Чистые Пруды/Тургеневская. Три этажа, подвал и чердак. Земельный участок 0,13Га в аренде до 2031г. Кабинетная планировка, высота потолков 3,4м-3,6м. эл.мощность 129кВт. Сдано в краткосрочную аренду. Смешанные перекрытия, центральные коммуникации. Объект ДКН. Продажа объекта недвижимости. Планировки и фото по запросу.
ID: L1623
24.09.2015 | 1
№129674
Цена за м2 287 879 ₽
Местоположение
ГородМосква
МетроСретенский бульвар
Параметры объекта
Этажность4
Площадь общая3300
Основное
2015-09-24 10:52:26
Похожие объявления
Отдел коммерческой недвижимости
Скажите, что нашли эти контакты на сайте поиска
недвижимости КваддРу
недвижимости КваддРу
