Продам офис в Москве, Чуксин тупик, д 9
На карте
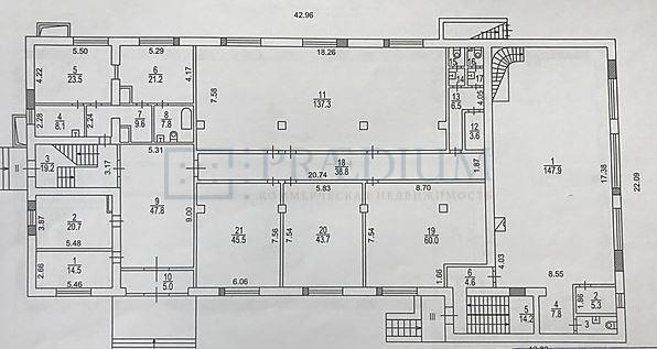
Об объекте
ID: o46399
Уважаемый Покупатель, предлагаем Вам приобрести 2900.9 м² в собственность на выгодных условиях.
Планировка - смешанная. Приточно-вытяжная вентиляция. Интернет, телефония. Охрана. Видеонаблюдение. Система контроля доступа. Наземная парковка.
САО Москвы. В 5 минутах от м. Дмитровская
Быстро реагируем на обращения, организуем встречу на объекте в удобное для Вас время, направим план помещения и ответим на все возникшие вопросы!
Звоните сейчас и получите лучшие условия на рынке!
24.04.2015 | 1
№126812
Цена за м2 258 532 ₽
Местоположение
ГородМосква
МетроДмитровская
УлицаЧуксин тупик
Параметры объекта
Этажность3
Площадь общая2901
Основное
2015-04-24 13:25:52
Похожие объявления
Другие объявления по Чуксин тупик
Отдел коммерческой недвижимости
Скажите, что нашли эти контакты на сайте поиска
недвижимости КваддРу
недвижимости КваддРу
