Продам офис в Москве, Дмитровский проезд, д 1Г
На карте
Об объекте
ID: L8496
Эксклюзивное предложение! Лучшее инвестиционное предложение на рынке!
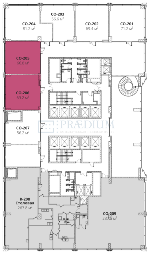
В продаже торговое помещение на 1-м этаже 66,8 м2 в новом проекте класса А Stone Дмитровская.
Торговая галерея с панорамным остеклением.
Бизнес-центр Stone Дмитровская реализуется совместно с Мэрией Москвы в рамках программы комплексного развития территории и станет первым бизнес-центром класса А в локации метро «Дмитровская».
3 минуты от метро. 2 минуты до станции МЦД. 2 км от ТТК.
Уникальная архитектура проекта – 23-х этажная офисная башня с динамическим фасадом, а также торговая галерея с панорамным остеклением.
Авторский архитектурный проект IND ARCHITECTS.
Здание спроектировано по принципу Healthy building.
Умные и экологичные технологии. Бесконтактный доступ в здание.
Все форматы премиальных офисов – офисные и торговые помещения от 20 м2.
3 000 м2 инфраструктуры.
Лаунж-пространства и двухсветное дизайнерское лобби.
Двухуровневый паркинг.
Выгодные условия приобретения - первый платеж от 10% + отложенный платеж.
Также предусмотрена комфортная рассрочка до конца строительства по привлекательной ставке!
Ежемесячное повышение цен! Успейте забронировать свой лот по самой выгодной цене!
Звоните прямо сейчас!
10.10.2022 | 1
№127908
Цена за м2 518 448 ₽
Местоположение
ГородМосква
МетроДмитровская
УлицаДмитровский проезд
Параметры объекта
Этаж2
Этажность23
Площадь общая67
Основное
2022-10-10 09:38:57
Похожие объявления
Другие объявления по Дмитровский проезд
Отдел коммерческой недвижимости
Скажите, что нашли эти контакты на сайте поиска
недвижимости КваддРу
недвижимости КваддРу
