Сдается офис в Москве, дом 18,стр.13
На карте
Об объекте
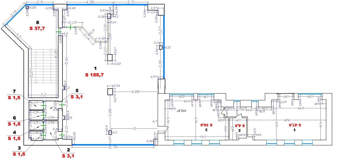
Аренда от собственника. Помещение кабинетной планировкой, площадь 266,4 м2, 3 этаж без лифта. Стандартная офисная отделка. Противоречивая и целостная гармония красного и черного считается одним из наиболее выразительных цветовых решений. Этот контраст, по мнению дизайнеров, всегда будет беспроигрышным. Оправдал он себя и при строительстве бизнес-центра “Stendhal”. Кирпичная кладка идеально сочетается с зеркальной поверхностью окон и матовой чернотой керамогранита. А оригинальные дизайнерские решения (опоясывающие фасад балконы, стеклянные потолки в холлах, декоративные колонны) сообщают строению неповторимую индивидуальность. Попасть на территорию бизнес-центра можно с Басманной улицы или с улицы Новорязанской. Общая площадь объекта – 22 079 кв. м., территория находится под круглосуточным видеонаблюдением. Звоните! Будем рады видеть вас в числе наших арендаторов.
14.01.2026 | 1
№128736
в месяц
Ставка аренды за м2 2 555 ₽
Местоположение
ГородМосква
МетроКомсомольская
Параметры объекта
Этаж3
Этажность3
Площадь общая266.4
Основное
2026-01-14 11:58:20
