Сдается офис в Москве, д 40/12 к 2
На карте
Об объекте
ID: L11779
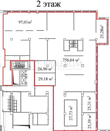
Аренда современного офиса 1177,8 м2 в районе станции метро Бауманская, Красносельская и Комсомольская.
o 2 этаж
o Класс В+
o Качественная офисная отделка
o Смешанная функциональная планировка
o Режим работы с 6:00 до 23:00
o Деловой центр Новь
o Ближайшие станции метро Бауманская, Красносельская и Комсомольская, 7-10 минут пешком
o В шаговой доступности вся необходимая и развитая инфраструктура
o Все коммуникации центральные
o Круглосуточная охрана и видеонаблюдение
o Наземная парковка
Здание расположено в районе Басманный. Общая площадь офисного комплекса 60000 м2. Год постройки 1977.
Заинтересованы в аренде или покупке коммерческой недвижимости, записывайтесь на индивидуальный просмотр. Звоните!
16.10.2013 | 1
№125792
в месяц
Ставка аренды за м2 3 083 ₽
Местоположение
ГородМосква
МетроБауманская
Параметры объекта
Этаж2
Этажность5
Площадь общая1178
Основное
2013-10-16 11:19:11
Похожие объявления
Отдел коммерческой недвижимости
Скажите, что нашли эти контакты на сайте поиска
недвижимости КваддРу
недвижимости КваддРу
